x
S E T A A L U M I N Y U M

1994’ten bu yana inşaat ve elektrik sektöründe faaliyet gösteren Ateş İnşaat, 2025 yılında alüminyum profil üretimine “SETAALUMİNYUM” markasıyla başlamıştır. Kilis’te kurulmuş olan 12.000m2 kapalı, 26.000m2 açık fabrika alanında uzman ve deneyimli ekibi ile gelişmiş son teknoloji makinelerle uluslararası standartlarda üretim yapmaktadır.

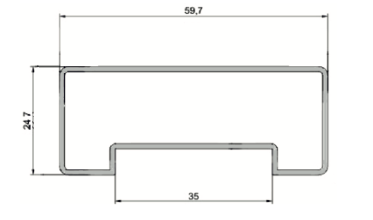
Seta 3034

Ağırlık : 518 ( gr/m)

SETA 3034, Camlı Korkuluk Sistemleri için 518 gr/m ağırlığındaki temel profillerinden biridir. Ağırlığı itibarıyla SETA 3001 ile aynı sınıftadır ancak kesit yapısı camlı sistemlere (Kare veya Kanallı Yapı) uygun olarak tasarlanmıştır.

Cam panellerin arasına giren dikme veya camın üzerine oturan küpeşte olarak kullanılabilen bu profil, Seta Alüminyum'un "Güvenli ve Şık" tasarım anlayışını yansıtır.

Öne Çıkan Özellikler

  • Çok Yönlü : Camlı sistemlerde hem dikey hem yatay eleman olarak kullanılabilir.
  • Optimum Ağırlık : 518 gr/m ağırlığıyla ekonomik ve sağlam bir çözüm sunar.
  • Modern Görünüm : Cam ile birleştiğinde modern balkon mimarisine tam uyum sağlar.

Profil Kodu = 3034

Kategori = Küpeşte ve Korkuluk Profilleri

Teorik Ağırlık = 0.518 kg/m

Kullanım Yeri = Camlı Sistem Dikme / Küpeşte

Neden Bu Ürünü SETA Alüminyum Kalitesiyle Almalısınız?

  • Üretim Standartları : Cam ölçülerine tam uyum sağlaması için hassas toleranslarla üretim yapıyoruz.
  • Proje Desteği : Camlı korkuluk projelerinizde doğru profil seçimi için teknik destek sunuyoruz.
  • Entegre Kalite : Hammaddeden paketlemeye kadar her aşama Seta Alüminyum garantisindedir.

Ağırlıkları aynıdır (518gr). 3001 genelde yuvarlak boru formundayken, 3034 camlı sistemlere uygun kanallı veya kare formda olabilir.

Eğer profilin iç boşluğu uygunsa, camın üzerine veya altına LED aydınlatma entegre edilebilir.

Kesinlikle, eloksal kaplaması sayesinde her türlü hava koşuluna dayanıklıdır.

Bize Yazın

Sorularınızı Hemen Sorun

Projeleriniz, ürün talepleriniz veya iş birlikleri hakkında detaylı bilgi almak için bizimle iletişime geçebilirsiniz. Uzman ekibimiz size en kısa sürede dönüş yapacaktır.

Seta Aluminyum TSE Belgesi

Tse Onaylı

Seta Alüminyum, üretim süreçlerinde kalite ve güveni ön planda tutarak, ürünlerini TSE standartlarına uygun şekilde üretmekte ve belgelendirmektedir.

Seta Aluminyum Katalog

Kataloglarımız

Kataloglarımızda mimariden otomotive, enerjiden savunma sanayine kadar birçok sektöre özel alüminyum profil çözümlerimizi bulabilirsiniz.