x
S E T A A L U M I N Y U M

1994’ten bu yana inşaat ve elektrik sektöründe faaliyet gösteren Ateş İnşaat, 2025 yılında alüminyum profil üretimine “SETAALUMİNYUM” markasıyla başlamıştır. Kilis’te kurulmuş olan 12.000m2 kapalı, 26.000m2 açık fabrika alanında uzman ve deneyimli ekibi ile gelişmiş son teknoloji makinelerle uluslararası standartlarda üretim yapmaktadır.

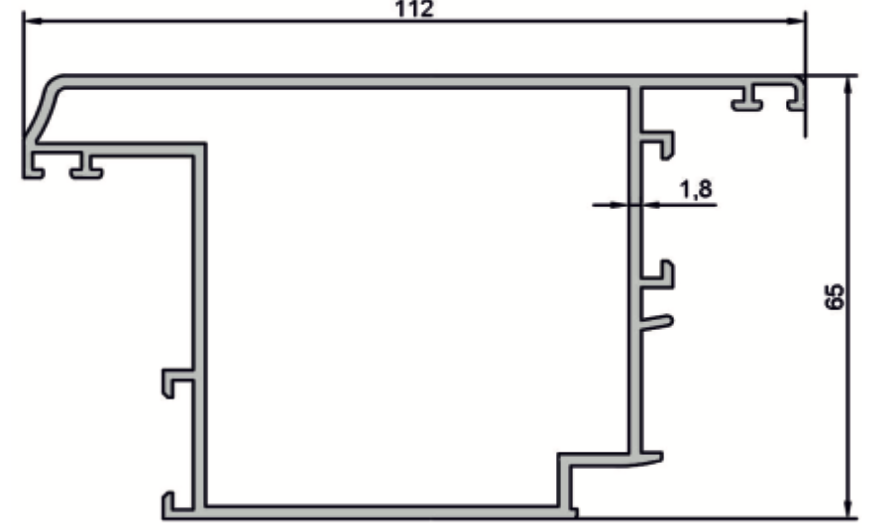
Seta 5007

Ağırlık : 1760 ( gr/m)

SETA 5007, 1.760 kg/m ağırlığı ile Seta-55 serisinin en güçlü statik profillerinden biridir. Genelde çok yüksek vitrinlerde veya geniş açıklıklı bina girişlerinde "Geniş Orta Kayıt" veya "Takviyeli Kasa" olarak kullanılır. Rüzgar yükünün cam yüzeyine yaptığı baskıyı karşılayarak sistemin esnemesini önler.

Isı bariyerli yapısı sayesinde, binanın dış cephesindeki büyük metal yüzeylerin ısı köprüsü oluşturmasını engeller, iç mekanın iklimlendirme maliyetlerini düşürür.

Öne Çıkan Özellikler

  • Statik Denge: Yüksek atalet momenti sayesinde rüzgarlı cephelerde güvenle kullanılır.

  • Büyük Camlar: Ağır ve büyük ısıcamların yükünü taşıyabilecek kapasitededir.

  • Termal Konfor: İç yüzeyde terleme ve soğuma yapmaz.

 

Profil Kodu = 5007

Kategori = Seta-55 Yalıtımlı Sistemler

Teorik Ağırlık = 1.760 kg/m

Kullanım Yeri = Geniş Kayıt / Mukavemet Profili

Neden Bu Ürünü SETA Alüminyum Kalitesiyle Almalısınız?

  • Mühendislik: Rüzgar yükü hesaplarına göre tasarlanmış optimum kesit yapısı.

  • Üretim Teknolojisi: Bariyer sıkıştırma işleminde yüksek hassasiyet göstererek profilin düzgünlüğünü koruyoruz.

  • Lojistik: Ağır ve uzun profilleri şantiyenize zarar görmeden ulaştırıyoruz.

5007 (1.76 kg), 5003'ten (1.36 kg) çok daha ağırdır. Yüksekliği 3 metreyi bulan veya rüzgar alan cephelerde 5007 tercih edilmelidir.

Alüminyumun kendi mukavemeti genellikle yeterlidir, ancak statik hesap gerektiriyorsa iç boşluğa takviye yapılabilir.

Evet, dışa açılım kapı kasası veya orta kaydı olarak kullanılabilir.

Bize Yazın

Sorularınızı Hemen Sorun

Projeleriniz, ürün talepleriniz veya iş birlikleri hakkında detaylı bilgi almak için bizimle iletişime geçebilirsiniz. Uzman ekibimiz size en kısa sürede dönüş yapacaktır.

Seta Aluminyum TSE Belgesi

Tse Onaylı

Seta Alüminyum, üretim süreçlerinde kalite ve güveni ön planda tutarak, ürünlerini TSE standartlarına uygun şekilde üretmekte ve belgelendirmektedir.

Seta Aluminyum Katalog

Kataloglarımız

Kataloglarımızda mimariden otomotive, enerjiden savunma sanayine kadar birçok sektöre özel alüminyum profil çözümlerimizi bulabilirsiniz.

Diğer Ürünleri Keşfet

Detaylarda Güç Saklı! Diğer Ürünlerimize Göz Atın.

Benzer Ürünler bölümümüzde, ihtiyaçlarınıza uygun farklı profil seçeneklerini keşfedin. Fonksiyonel, estetik ve dayanıklı çözümlerle projelerinize en uygun alternatifi sunuyoruz.