x
S E T A A L U M I N Y U M

1994’ten bu yana inşaat ve elektrik sektöründe faaliyet gösteren Ateş İnşaat, 2025 yılında alüminyum profil üretimine “SETAALUMİNYUM” markasıyla başlamıştır. Kilis’te kurulmuş olan 12.000m2 kapalı, 26.000m2 açık fabrika alanında uzman ve deneyimli ekibi ile gelişmiş son teknoloji makinelerle uluslararası standartlarda üretim yapmaktadır.

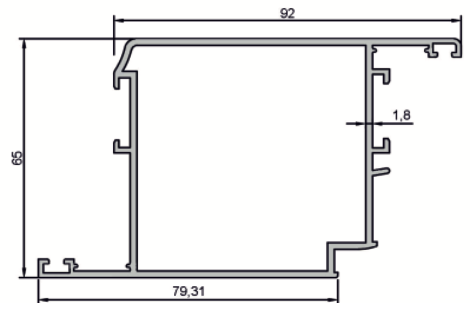
Seta 5004

Ağırlık : 1647 ( gr/m)

SETA 5004, Seta-55 sisteminin "Ağır Hizmet" grubunda yer alan, 1.647 kg/m ağırlığında güçlü bir kapı kanadı profilidir. Bina giriş kapıları, balkon kapıları veya ofis girişlerinde; sık açılıp kapanmaya ve ağır cam yüklerine dayanacak şekilde tasarlanmıştır.

İçeriye açılan kapı detaylarında kullanılan bu profil, geniş kesiti sayesinde kilit ve kol mekanizmalarının montajına uygundur. Isı bariyerleri, kapı yüzeyinden oluşabilecek büyük ısı kayıplarını minimize eder.

Öne Çıkan Özellikler

  • Yüksek Mukavemet: 1.6 kg/m üzerindeki ağırlığıyla kapının sarkmasını (bel vermesini) önler.

  • Geniş Kesit: 35mm/40mm barel (kilit) kullanımına uygun genişliktedir.

  • Maksimum Yalıtım: Geniş yüzey alanına rağmen ısı bariyeri sayesinde enerji dostudur.

Profil Kodu = 5004

Kategori = Seta-55 Yalıtımlı Sistemler

Teorik Ağırlık = 1.647 kg/m

Kullanım Yeri = Kapı Kanadı

Neden Bu Ürünü SETA Alüminyum Kalitesiyle Almalısınız?

  • Güvenlik: Etli yapısı sayesinde hırsızlığa karşı zorlanmalarda yüksek direnç gösterir.

  • Aksesuar Desteği: Piyasada bulunan tüm yalıtımlı kapı menteşeleri ve kilitleriyle uyumludur.

  • Uzun Ömür: Kapı kanatları en çok çalışan parçalardır; Seta Alüminyum kalitesiyle yıllarca sorunsuz açılır-kapanır.

Ağırlığı ve genişliği nedeniyle genellikle kapılarda tercih edilir, pencereler için 5005 daha uygundur.

Profilin kesit detayına göre (Z veya T kanat) genellikle içe açılım içindir, dışa açılım için adaptör veya farklı kanat (5006 vb.) gerekebilir.

Ahşap desenli kaplama dahil tüm renk seçenekleri mevcuttur.

Bize Yazın

Sorularınızı Hemen Sorun

Projeleriniz, ürün talepleriniz veya iş birlikleri hakkında detaylı bilgi almak için bizimle iletişime geçebilirsiniz. Uzman ekibimiz size en kısa sürede dönüş yapacaktır.

Seta Aluminyum TSE Belgesi

Tse Onaylı

Seta Alüminyum, üretim süreçlerinde kalite ve güveni ön planda tutarak, ürünlerini TSE standartlarına uygun şekilde üretmekte ve belgelendirmektedir.

Seta Aluminyum Katalog

Kataloglarımız

Kataloglarımızda mimariden otomotive, enerjiden savunma sanayine kadar birçok sektöre özel alüminyum profil çözümlerimizi bulabilirsiniz.

Diğer Ürünleri Keşfet

Detaylarda Güç Saklı! Diğer Ürünlerimize Göz Atın.

Benzer Ürünler bölümümüzde, ihtiyaçlarınıza uygun farklı profil seçeneklerini keşfedin. Fonksiyonel, estetik ve dayanıklı çözümlerle projelerinize en uygun alternatifi sunuyoruz.